

一、项目介绍
1、设计背景:为进一步加强乐山市社会治理模式创新,实现政府决策科学化、社会治理精准化、公共服务高效化,提升乐山市智慧治理的能力和水平,乐山市新规划选址建设青羊区智慧治理中心,该楼为两层钢结构建筑,面积约 960 ㎡。
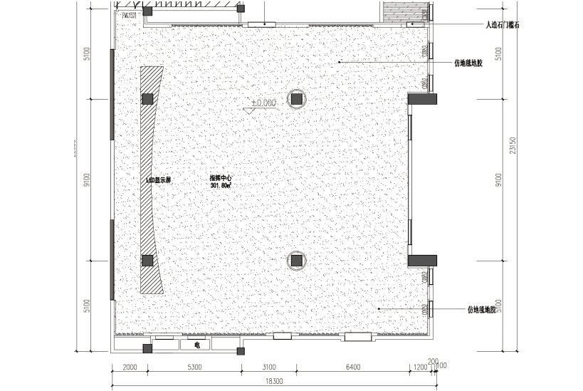
2、平面布置图:

智慧治理中心一层平面布置图
二、声学方案设计说明
(一)、声学混响时间要求
本项目一楼作为智慧指挥大厅,占地面积达近300㎡,设计吊顶高度在4.2m,为此次声学控制重点。
中心声场效果需满足语言清晰度和声场均匀的要求,应避免出现声聚焦、共振、回声等缺陷。墙面、顶面做声学设计,满足会场混响时间要求,室内混响时间控制在 0.8-1.2(s)(中频混响时间)。
(二)、声场环境技术要求
为确保中心的音质指标及多功能厅堂建筑声学技术要求,对声场环境服务的提出以下要求:
1)施工完成后提供声场检测报告;
2)满足多功能厅堂内用良好的听闻条件,达到较高的语言清晰度;
3)声场均匀,避免回声、颤动回声及声聚焦等音质缺陷;
4)声学处理方案必须结合结构形式,满足荷载及装饰要求;
5)声学材料必须满足声学、防火、环保等技术要求;
6)中心内各类噪声对环境的影响,应按现行国家标准《城市区域环境噪声标准》GB3069 执行。
7)满足背景噪声限值的要求。
8)通风、空气调节系统及制冷机房应采用消声减噪措施,通过风口传入的噪声应满足室内允许噪声标准,最大动力设备应采用减振措施。
(三)、声学方案设计说明
1、指挥大厅顶面方案
顶面采用石膏板白色乳胶漆+定制穿孔率UV吸音透光软膜。兼顾美学与声学。顶面做出不平整的造型用以反射直达声,增加场馆内早期反射声,使室内声场整体均匀。

顶面施工示意图
2、指挥大厅墙面方案
在会议室四周墙面合理布置吸声材料,不仅可以将室内混响时间控制在会议室容积所对应的最佳混响时间范围内,而且能够消除回声和颤动回声等声学缺陷,以使声场尽可能均匀。

墙面吸声材质布置图(详见施工图)
3、指挥大厅地面方案
地面采用自流平+PVC塑胶地板做装饰处理

地面PVC塑胶地板材质布置图(详见施工图)
三、计算机声场模拟
1、语言清晰度模拟

C50语言清晰度分析二维坐标图

C50语言清晰度分析三维坐标图
2、混响模拟

混响模拟二维坐标图

混响模拟三维坐标图
3、声学追踪分析

声学追踪平面分析图

声学追踪立面分析图

声学追踪透视分析图