

一、主要声学技术指标
智慧治理中心指挥大厅、主要以会议、现场办公指挥调度的场所,其建筑声学设计按会议室声学设计,会议室根据用途,需要满足一定的语言清晰度,要采用短混响声学设计;同时无明显回声和颤动回声等的声学缺陷;因此,需要用强吸声措施,降低室内混响时间,保证厅内语言清晰度。
2.1、混响时间声学设计指标
根据《剧场、电影院和多用途厅堂建筑声学设计规范》GB/T 50356-2005中规定,不同体积会议厅、报告厅和多用途礼堂最佳混响时间如图1,指挥大厅容积为3245m3其设计混响时间标准值为0.7-1.2秒之间,可允许低频稍长,高频稍短;混响时间频率特性平直。

图1 会议室最佳混响时间
2.2、室内隔音量声学标准
根据《剧场、电影院和多用途厅堂建筑声学设计规范》GB/T 50356-2005中规定会堂、报告厅和多用途礼堂的厅内噪声限值,采用自然声时,会议室厅内背景噪声应满足应满足NR-30,采用扩声系统时,会议室内背景噪声应满足NR-35。
根据《办公建筑设计规范》 JGJ67-2006中规定,办公建筑的空气声隔声标准如表1,该智慧治理中心隔墙应满足隔声≥45dB。

表1 会议室隔声标准
二、建筑声学方案说明
为了保证会议室的室内良好音质要求,要室内为短混响时间,保证语言的清晰度,避免回声、颤动回声和声场不均匀等声学缺陷,我们声学处理主要需要做的有以下几个方面,
首先是保证指挥大厅、的隔音量避免室内外相互干扰,需要做好墙体的密闭性,空调新风、消防喷淋头、门窗的隔音措施。
其次是增加指挥大厅室内整体的吸音量,以有效的控制房间内的混响时间;
再次是有针对性的对特定频段进行处理,减少或打乱反射声,使其在一定的频率内不能产生明显的驻波(即回音)。
2.1、项目的隔音处理实施方案说明
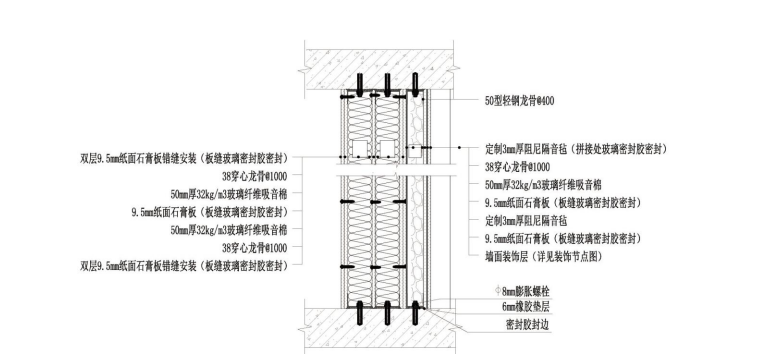
3.1.1、指挥大厅新建隔音墙体措施

指挥大厅新建隔音墙体示意图
3.1.2、指挥大厅原始墙面隔音措施

指挥大厅原始墙面隔音示意图
3.1.3、指挥大厅顶面隔音措施

指挥大厅顶面隔音示意图
3.1.4、门窗的隔音措施
3.1.4.1、窗户不做隔音处理,本次方案不做特别说明。
3.1.4.2、隔音门为厂家定制钢制隔音门,中高频隔音量超过45db,厚度不低于65mm,门内不低于7种隔音材料,门框可根据现场实际尺寸进行调节调节尺寸为200-400mm。
3.1.5、空调消防隔音措施
3.1.5.1、应做好空调系统的减振消声处理,在空调管道中安装消声器,并控制风速,使出风口风速≤2.2m/s,回风口风速≤2.5m/s,空调管道用20mm橡树减震胶垫包扎一圈,吊装风管连接处应做橡胶垫做缓冲处理。
3.2、指挥大厅建筑声学设计装修方案实施
3.2.1、指挥大厅墙面定制聚酯纤吸音板软包节点

定制50mm厚聚酯纤维吸软包安装示意图
3.2.2、指挥大厅墙面定制穿孔木纹铝板节点

定制穿孔铝板折弯造型安装示意图
3.2.3、顶面定制穿孔吸音软膜节点

顶面穿孔吸音软膜示意图